SIP staat voor Structural Insulated Panel (in het Nederlands, soms: Constructief Isolerend Sandwich Paneel). SIP's zijn isolerende sandwichpanelen met een grote sterkte en stijfheid waardoor ze constructief kunnen worden toegepast (als isolatie en drager), dus als dragende of niet-dragende wand of als dak. De warmteweerstand (Rc-waarde) loopt, afhankelijk van de dikte van het paneel en de overige opbouw van de gevel, tot boven de 10.
Welke plaats neemt de SIP in bij een gebouw? De SIP is drager én isolatie ineen, maar vereist uiteraard wel afwerking aan de binnenzijde en vooral aan de buitenzijde van het gebouw:
- aan de binnenzijde worden afgewerkt met een gipsplaat of gipsvezelplaat (ook voor de brandwerendheid; twee lagen gipsplaat geeft 60 minuten brandvertraging)
- aan de buitenzijde kan met of zonder spouw gewerkt worden; met spouw bijvoorbeeld door het aanbrengen van een buitenspouwblad van baksteen, en zonder spouw door het aanbrengen van bijvoorbeeld steenstrips of andere gezaagde bakstenen, verduurzaamd hout of stucwerk.
De sandwichpanelen zijn samengesteld uit polyurethaan (PUR) of expanded polystyreen (EPS) dat voor de warmte-isolatie zorgt, waaraan aan weerszijden platen OSB/3 of spaanplaat zijn gehecht. Door de hechting van het isolatiemateriaal aan de houtachtige platen is in beginsel geen versteviging nodig in de vorm van balkjes tussen de platen, waardoor het paneel nog wat beter isoleert. (Wanneer in bepaalde situaties wél balkjes voor versteviging worden toegepast, lopen die niet van voor- naar achterzijde, maar worden de panelen aan elkaar verbonden door geïsoleerde verbindingsveren).
Voordelen van SIP's
- isolatie en drager inéén, dus vergemakkelijkt het bouwen aanzienlijk
- grote mate van ontwerpvrijheid
- snel bouwen en minder faalkosten (het meeste wordt in de fabriek op maat gemaakt; het casco staat in enkele dagen)
- licht van gewicht, lichter nog dan houtskeletbouw (24 kg/m2; kalkzandsteen heeft een massa van ca. 175 kg/m2; SIP's zijn dus ook toepasbaar waar geen zware constructies mogelijk zijn en waar een beperkte funderingsdiepte is)
- wanddikte slechts ca. 275 mm bij een Rc-waarde van ca. 7,0 (bij toepassen van steenstrips; bij baksteen afwerking ca. 100 mm dikker; bij een gegeven gebouwoppervlakte is er daardoor meer vloeroppervlakte voor de bewoner beschikbaar)
- koudebrugarm en luchtdicht bouwen is mogelijk
- weinig afval op de bouwplaats.
Nadelen van SIP's
- woningen tot 4 verdiepingen (bij meer kan niet uitsluitend met SIP's gebouwd worden als dragende wanden; natuurlijk kunnen bij hoogbouw de niet-dragende buitenwanden wel SIP's zijn)
- afwerken aan binnenzijde en vooral buitenzijde gebouw blijft (uiteraard) noodzakelijk
- vooral nieuwbouw: vooral geschikt voor nieuwbouwprojecten (renovatie met SIP's wellicht moeilijk i.v.m. bouwfysica vanwege meer vochtdoorslag, damptransport e.d. bij oudere bouwen)
- niet uitfrezen: de panelen mogen niet uitgefreesd worden voor elektriciteitsleidingen e.d. (de "gangen" doorbreken dan de stabiliteit van het paneel; om die afstand te scheppen kunnen de gipsplaten in een "installatiewand" met steenwol worden aangebracht; op wanden zonder elektradozen kan men de gipsplaat direct op de SIP's panelen aanbrengen)
- zware objecten ophangen vraagt extra aandacht (vergelijkbaar met veel andere wandoplossingen)
- op de bouwplaats is een kraan benodigd.
Aandachtspunten
- SIP's-wanddiktes mogelijk van 100, 121, 152, 172, 202 en 225 mm (Hemsec SIP's) en van 142 en 172 mm (Kingspan TEK)
- bij aanbrengen van een buitenspouwblad dienen de spouwankers zó geplaatst te worden dat eventueel vocht in de spouw naar het baksteen gaat en niet naar het paneel
- combineren SIP's en houtbouw (houtskeletbouw, panelenbouw); gevel en dak van SIP's en binnenwanden en vloeren houtskeletbouw
- SIP's kunnen mogelijk toegepast worden bij industrieel bouwen (montagebouw met prefab bouwelementen) of eenvoudige vormen van montagebouw.
Naar Documentatie
een voorbeeld van sip's van kingspan tek; klik voor de volledige afbeelding:![]() |
hemsec-sips; bouwschema sip's met stelregel, montageregel, sip-elementen, houten stijlen en tussen-sip-elementen; klik voor groter (hemsec sips supply): ![]() |
hemsec-sips; opbouw onderzijde sip bij bevestiging in beton met een conische keilbout door behandelde houten stelregel, stelblokjes met ondersabelingen; bij een houten ondergrond is de bevestiging met voorgeschreven schroeven; klik voor groter (hemsec sips supply): ![]() |
hemsec-sips; opbouw met steenstrips en installatiewand met minerale wol (voor elektra en andere leidingen); dikte totaal ca. 270 mm incl. 1x gipsplaat; klik voor groter! (hemsec sips supply): ![]() |
hemsec-sips; opbouw met metselwerk en installatiewand met minerale wol (voor elektra en andere leidingen); dikte totaal ca. 370 mm incl. 1x gipsplaat; klik voor groter! (hemsec sips supply): ![]() |
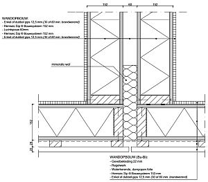
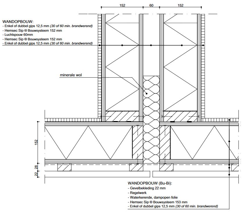
opbouw woningscheidende wand, van boven gezien; klik voor groter! (hemsec sips supply): ![]() |
specificaties paneeldikte, osb, rd-waarde, gewicht e.d. (kingspan tek): ![]() |
beng-verlaging bij toepassen van bijvoorbeeld kingspan-tek; klik voor groter! (kingspan tek): ![]() |
geveldikte kingspan-tek ten opzichte van houtskeletbouw en traditioneel metselwerk (en daarmee ook meer gvo, gebruiksvloeroppervlakte); klik voor de volledige afbeelding! (kingspan tek): ![]() |
![]() |
De term structural in structural insulated panel is de Engelse term voor structureel, de constructie betreffende, bouwkundig.
Documentatie
- Hemsec Technische informatie
- Hemsec Praktijkgids met zeer veel nuttige informatie
- Kingspan TEK Bouwsysteem: Hét nieuwe bouwen
- Kingspan TEK Technische brochure
Verg. houtskeletbouw (hsb), CLT (Cross Laminated Timber), sandwichgevel.









