Term houtskeletbouw (hsb)



Houtskeletbouw van Livios (België)

Houtskeletbouw (meer montagebouw eigenlijk) met behulp van Kerto-hout
Suteki Wood System: na 3 dagen is het skelet gereed
Wand Gutex bij houtskeletbouw

Buitenwandisolatie bij houtskeletbouw:
1. Houten profielen
2. Gipsplaat
3. Dampwerende laag
4. GUTEX Thermosafe
5. GUTEX Thermowall-nf WDVS
6. GUTEX Putzsysteem
Vakwerkhuis als vorm van houtskeletbouw
Houtskelet met een stijl gedeeltelijk in de muur en steunend op de onderste baksteenlagen van de muur
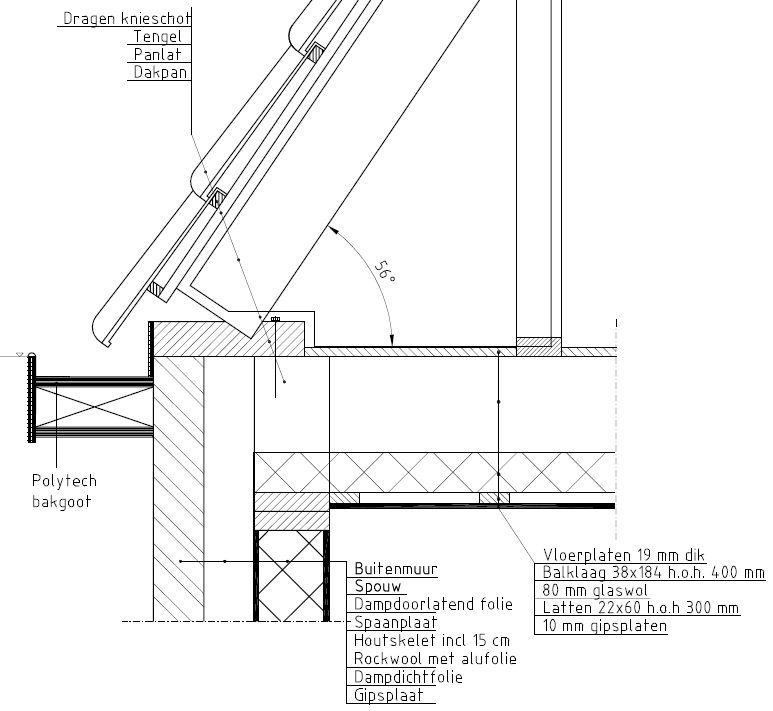
Houtskeletbouw detail muuropbouw en dakdeel (klik voor groter!)
Details aansluitingen vloer, muur, dak
Aansluiting vloer met muur:

Aansluiting muur met dak:


