De
dakvoet is de afsluiting van het
dakschild
(dakvlak) aan de
onderzijde van het dak. De dakvoet is
dus de onderkant van een hellend dak dat eindigt in een dakgoot
of dat overgaat naar een plat dak
(zie de tweede foto voor een toch wel uitzonderlijke situatie).
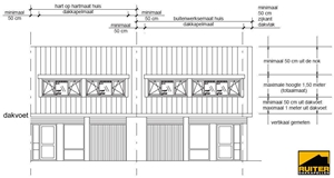
De eerste afbeelding geeft een aantal regels die gelden voor het plaatsen van dakkapellen,
waar de dakvoet een belangrijke rol speelt.
dakvoet, regels voor plaatsing dakkapellen; klik op de afbeelding voor groter, tekening rob verkamman, ruiter dakkapellen): ![]() |
dakvoet van hellend dak bij aansluiting met een plat dak: ![]() |
Zie ook de afbeelding bij daklengte.
Eng. eave, eaves

